В наше время отопление собственного дома обходится все в большую сумму, поэтому люди стремятся найти и использовать более экономные способы отопления. Одним из неплохих вариантов, который позволяет обеспечить нормальную степень обогрева дома при значительной экономии материальных средств, является котел длительного горения на дровах.
Особенности котлов длительного горения
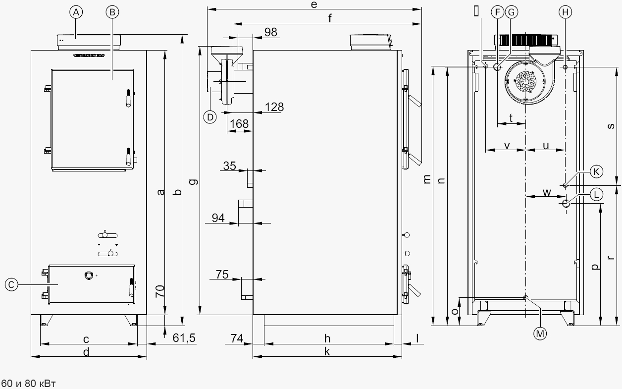
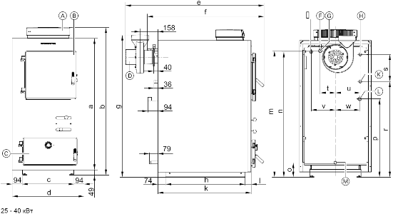
Домашние отопительные приборы такого типа отличаются между собой объемом камеры сгорания, материалом выполнения и конструкцией. При производстве теплообменника в котлах такого типа обычно используется сталь или чугун, каждый из этих материалов отличается своими преимуществами и недостатками.


Среди основных особенностей использования, которыми отличаются подобные отопительные элементы для дома, стоит отметить:
- Выделяемый при работе угарный газ не уходит в дымоход, а используется в качестве сырья для производства горючего газа;
- Неравномерный нагрев водяного теплоносителя;
- Горение топлива регулируется путем увеличения или уменьшения подачи воздуха;
- После сжигания дров выделяется много золы и сажи;
- Использование котла требует наличия дымохода в доме;
- Важно контролировать сухость дров, поскольку это значительно влияет на их энергетические качества;
- Требуется наличие свободного места для хранения дров;
- Котел должен быть расположен вдали от домашних приборов и различных поверхностей.
Принцип работы


Отопительные приборы длительного горения представляют собой большую камеру сгорания высотой более 2 метров, которая полностью заполняется твердым топливом – дровами. В отличие от стандартных приборов для дома, дрова начинают гореть сверху, а не снизу. По мере сгорания огонь перемещается вниз.
В результате такой работы отопительного устройства для полного сгорания одной загрузки дров требуется от 7 часов. В моделях с самыми большими объемами камеры сгорания для сжигания одной загрузки топлива может понадобиться до 36 часов.
Для предотвращения разгорания древесины внутрь применяется целенаправленная подача воздуха в центральную часть пламени. Обеспечивается это специальным телескопическим воздухораспределителем, который содержат все отопительные приборы такого типа. Этот элемент опирается на дрова, поэтому по мере их сгорания опускается вниз.
Преимущества и недостатки котлов
Отопительные котлы современных моделей с длительным сгоранием дров представляют собой оборудование, обладающее массой преимуществ.


[ads-mob-1][ads-pc-1]
Котел длительного горения на дровах
Среди них:
- Прекрасная теплопередача и высокая производительность;
- Привлекательный внешний вид, что позволяет легко вписать оборудование в современный интерьер дома;
- Простой процесс регулировки горения;
- Практически полностью автоматизированный процесс сгорания дров;
- Относительно низкая стоимость твердого топлива, которое используется для работы котла;
- Отсутствие необходимость подключения отопительного оборудования к централизованному газопроводу.
Среди самых важных недостатков, которыми отличаются отопительные устройства такого типа, являются высокие требования, выдвигаемые к влажности дров в таких отопительных элементах, поскольку это влияет на эффективность их сгорания.
Разновидности приборов
Все современные модели котлов длительного сжигания дров делятся на два основных типа – пиролизные котлы и устройства верхнего горения.
Пиролизный котел


Принцип действия котла пиролизного типа основывается на расщеплении топлива на кокс и пиролизный газ. Осуществляется такой процесс благодаря низкой скорости горения: древесина фактически тлеет, а не горит. В результате этого появляется пиролизный газ, горящий при контакте с воздухом.
Конструктивно обогревательные водяные приборы состоят из двух камер: в одной из них расщепляет топливо, в другой – горит пиролизный газ.
Хотя весь процесс осуществляется под контролем автоматики, такие устройства можно сделать и своими руками, обладая соответствующими навыками.
Котел верхнего горения
Отопительные котлы с верхним горением, как понятно из названия, сжигают топливо сверху. Благодаря этому горение происходит намного медленнее, что способствует полному прогоранию всех материалов. Все это происходит при низкой подаче воздуха, который поступает в камеру через сопла, что находятся под контролем автоматики.
В изготовлении своими руками такие модели отопительных приборов являются более простыми.
Самостоятельное изготовление котлов: трудности


Несмотря на высокую экономичность и эффективность использования, котлы такого типа имеют достаточно высокую стоимость, что делает их недоступными для большинства современных потребителей.
Высокая цена отопительного оборудования обуславливается высоким уровнем его мощности, что положительно влияет на поддержку оптимального температурного режима в доме.
Бытует мнение, что в будущем в продаже должна появиться отопительная техника с не очень высокой мощностью, благодаря чему стоимость ее уменьшиться.
В первую очередь из-за высокой стоимости множество потребителей решают не покупать котлы длительного горения, а использовать самодельные устройства такого типа.
Сделать котел самому – реально?
Но в процессе сборки необходимо внимательно придерживаться всех правил, иначе даже незначительная деталь можно привести к неработоспособности прибора, его низкой эффективности или даже к его взрыву при попытке использования. Именно поэтому, не имея соответствующего опыта и навыков работы, за сборку котла своими руками лучше даже не браться.
Как самому сделать котел
После приготовления всех необходимых инструментов и материалов можно приступать к изготовлению самодельного котла.


Первый этап изготовления – разработка корпуса прибора. Для этого из трубы диаметром 300 мм берется отрезок длиной около 100 см. Далее из толстого листового металла вырезается и приваривается дно. Также на этом этапе изготовления своими руками котла длительного горения можно сделать ножки.
Следующий этап – выполнение распределителя воздуха. Для этого из листового металла вырезается круг, диаметр которого примерно на 20 мм меньше корпуса.
Далее посередине круга проделывается отверстие диаметром 20 мм.
Дальше в нижней части распределителя горения устанавливается крыльчатка с лопастями из тонкого металла, ширина каждой из них – до 50 мм.


После этого в верхней части регулятора приваривается труба диаметром около 60 мм и высотой немного большей, чем высота самого котла. Сверху труба оснащается заслонкой для регулировки подачи воздуха.
В нижней части котла вырезается дверца, которая будет использоваться для удаления золы.
Следующий этап изготовления котла своими руками – выполнение дымохода. Для этого в верхней части устройства приделывается труба диаметром 100 мм. Она должна быть почти горизонтальной уже на расстоянии 40 см, далее переходя в теплообменник.
[ads-pc-2][ads-mob-2]